Anlageobjekt, vermietetes Zweifamilienhaus in Seenähe Wandlitz / OT Stolzenhagen

Die Bilder sind aktuell.

Bei diesem Angebot handelt es sich um ein hochwertiges Zweifamilienhaus, das 2019 in massiver Bauweise errichtet wurde.
Das Gebäude überzeugt durch eine moderne, zeitlose Architektur mit einer
ansprechenden Holzfassade aus Lärchenholz und großzügigen Fensterflächen, die für helle,
lichtdurchflutete Räume sorgen.
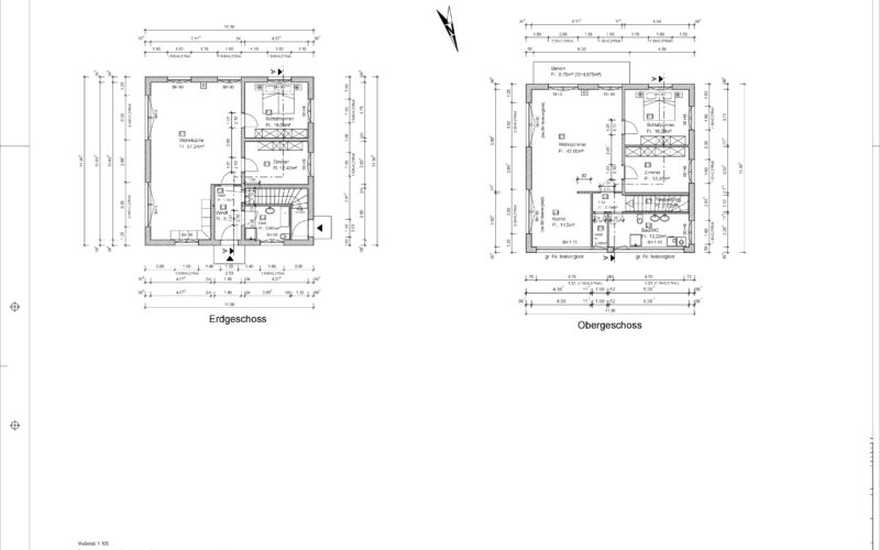
Das Haus verfügt über zwei voneinander getrennte Wohneinheiten auf jeweils einer Etage. Die Erdgeschosswohnung umfasst ca. 114 m² Wohnfläche mit 3 Zimmern, einer offenen Wohnküche, einem
Wannenbad mit Dusche und WC, einem Flur sowie einer Terrasse mit Zugang zum Garten.
Im Erdgeschoss befindet sich zudem ein Abstellraum.
Die Obergeschosswohnung bietet ca. 109,50 m² Wohnfläche mit ebenfalls 3 Zimmern, einer separaten
Küche, einem Wannenbad mit Dusche und WC, einem Flur sowie einem Balkon. Das Obergeschoss ist
über ein eigenes Treppenhaus erschlossen.

Das Grundstück umfasst 989 m²
Das großzügige Grundstück
bietet einen gepflegten Garten mit Baumbestand in einer ruhigen Waldrandlage bzw. Anliegerstraße.

Zusammenfassung der Highlights
✓ Neubau 2019 in gehobener Ausstattung
✓ Zwei separate Wohneinheiten, beide vermietet
✓ Moderne Holzfassade mit zeitloser Architektur
✓ Hocheffiziente Erdwärmepumpe (Waterkotte) – niedrige Heizkosten
✓ 989 m2 Grundstück in idyllischer Wald- und Seelage
✓ 5 Gehminuten zum See
✓ Gute Infrastruktur: Schulen, Kitas, Einkaufen in der Nähe
✓ Anbindung an Berlin über RB27 und B109
✓ Ca. 4,58 % Bruttomietrendite

Ausstattung:

Ausstattung und Bauqualität
Die Außenwände bestehen aus 36,5 cm starkem Ytong-Porenbeton (PP4 im EG, PPW2 im OG), der für
eine hervorragende Wärmedämmung sorgt. Die Decke über dem Obergeschoss ist mit 22 cm
Mineralwolle (WLG 035) gedämmt. Die Fenster erreichen einen U-Wert von 0,9 W/m2K.
Die Beheizung erfolgt über eine hocheffiziente Erdwärmepumpe der Marke Waterkotte (Modell Ai1 Geo
5008.5) mit einem COP von 4,9 bis 6,5. Diese nutzt die konstante Temperatur des Erdreichs und
gewährleistet dauerhaft niedrige Heizkosten bei gleichzeitig umweltfreundlichem Betrieb.
Das gesamte Gebäude entspricht dem Energiestandard nach EnEV 2014 und verbindet ansprechendes
Design mit energetischer Effizienz.

Lage:

Das Objekt befindet sich in Stolzenhagen, einem ruhigen und naturnahen Ortsteil der Gemeinde Wandlitz im Landkreis Barnim, nordöstlich von Berlin.
Die Lage besticht durch die unmittelbare Nähe zu Seen und ausgedehnten Waldgebieten , der nächste Badesee ist in nur 5 Gehminuten erreichbar.
Schulen, Kindertagesstätten sowie Einkaufsmöglichkeiten für den täglichen Bedarf sind in der näheren Umgebung vorhanden.
Verschiedene Fachärzte, Apotheken und Ärztehäuser sind vorhanden.
Die Anbindung an Berlin erfolgt über die B109 sowie den Regionalbahnhof
Wandlitz (RB27), der eine direkte Verbindung zum Berliner S-Bahn-Netz bietet.
Stolzenhagen ist besonders bei Familien und Naturliebhabern beliebt, die eine hohe Wohn- und
Lebensqualität im Grünen schätzen, ohne auf die Nähe zur Hauptstadt verzichten zu müssen.

Sonstiges:

Bitte haben Sie Verständnis, dass wir aufgrund der Nachweispflicht gegenüber dem Eigentümer bzw. dem Verkäufer Anfragen nur beantworten, wenn Sie uns vollständige Angaben wie Name, Anschrift , Mailadresse + Telefonnummer unter der wir Sie erreichen können hinterlassen.
Es gelten unsere Allgemeinen Geschäftsbedingungen.
Besichtigungstermine werden individuell vereinbart.
Kontaktieren Sie uns bitte per E-Mail über
info@koehler-immobilien-wandlitz.de
oder unter der angegebenen Telefonnummer.

Haftungsausschluss:
Die Ihnen zugeleiteten Exposés sind für Ihren persönlichen Gebrauch bestimmt und dürfen nicht an Dritte weitergegeben werden.
Wir können sowohl für Sie als auch für den Verkäufer tätig werden.
Wir haften nur, wenn wir vorsätzlich oder grob fahrlässig einen Schaden verursacht haben. Für die Richtigkeit und Vollständigkeit übernehmen wir keine Gewähr.

Maklervertrag:
Sie lesen gerade unser Inserat, welches wir im Auftrag des Verkäufers/ Eigentümers im Makler- Allein-Auftrag für Sie erstellt haben.
Durch die Inanspruchnahme/ Dienstleistung unserer Maklertätigkeit kommt ein Maklervertrag zwischen Ihnen und uns zustande.
Ein Maklervertrag zwischen Ihnen und uns kommt durch schriftliche Vereinbarung oder durch die Inanspruchnahme/ Dienstleistung der Maklertätigkeit auf der Basis des hier inserierten Objektes/Exposés und seiner Bedingungen zustande.
Sollte Ihnen das von uns nachgewiesene Objekt bereits bekannt sein, teilen Sie uns das bitte mit.
Wir arbeiten ausschließlich mit einem Makler- Allein -Auftrag.

Provision:
Für unsere Tätigkeit ist vom Käufer bei Abschluss eines wirksamen notariellen Kaufvertrages über die o. g. Immobilie eine Provision von 7,14% inkl. MwSt. zu zahlen, diese ist am Tag der Unterzeichnung des Kaufvertrages verdient und fällig.

Objekt ID: 166406639
Verfügbar ab: Nach Vereinbarung
Kaufpreis: 740.000 EUR
Jährl. Mieteinnahmen (Ist): 33.902,40 EUR
Monatl. Mieteinnahmen (Soll): 2825,20 EUR
Jährl. Mieteinnahmen (Soll): 33.902,40 EUR
Lage: Am Wald
Erschließung: Voll Erschlossen
Energietyp: A+
Dachform: Zeltdach
Ausblick: Wald
Bauweise: Massiv
Befeuerung: Wärmepumpe
Wohneinheiten: 2
Zimmer: 6
Schlafzimmer: 2
Badezimmer: 2
Wohnfläche: 223 m²
Grundstücksfläche: 989 m²
Gesamtfläche: 223 m²
Etage: 2
Etagen: 2
Baujahr: 2019
Objektzustand: Sehr gut
Ausstattungskategorie: Luxus
Stellplatz/Carport Garten Balkon Terrasse Abstellraum DSL/Internet
Heizungsart: Wärmepumpe
Baujahr lt. Energieausweis: 2019
Energieeffizienzklasse: A+
Art des Energieausweises: Bedarfsausweis
Gültigkeit des Energieausweises: bis 11.02.2036